ВРП ДУ
Изготавливаются по ТУ-4861-018-52586529-04
2300 - 49000 м3/час
РАБОЧЕЕ КОЛЕСО С НАЗАД ЗАГНУТЫМИ ЛОПАТКАМИ
ПОКРЫТИЕ КОРПУСНЫХ УЗЛОВ ПОРОШКОВОЙ КРАСКОЙ
НИЗКИЙ УРОВЕНЬ ЭНЕРГОПОТРЕБЛЕНИЯ
Допускается применение всех вентиляторов в режиме общеобменной вентиляции при пониженной не менее чем на 25% против указанной в каталоге частоте вращения (например, с использованием частотного преобразователя).
Возможность установки снаружи и внутри помещения.
Рабочие колеса высокой аэродинамической нагруженности.
Вентиляторы обозначаются по приведенному ниже ключу:
ВРПА-3,15ДУ-4 – 01Пр
ВРПА - тип вентилятора (Вентилятор Радиальный Пристенный);
3,15 - диаметр рабочего колеса в дм (номер вентилятора);
ДУ - назначение (дымоудаление);
4 - число полюсов двигателя;
01 Пр - индекс исполнения
- 01* - входной патрубок + термоизолированный кожух -расположение входного патрубка относительно выходного: Н - напротив; Пр - справа; Лев - слева)
- 02* - только термоизолированный кожух
- 03 - только входной патрубок
- - по заказу возможно исполнение для крепления на полу.
Технические характеристики:
|
№
|
Тип вентилятора |
Тип электродвигателя |
Частота, n, мин-1 |
Мощность, Nу, кВт |
|
|
1 |
ВРП-А-3,15ДУ-4 |
АИР56В4 |
1350 |
0,18 |
|
|
2 |
ВРП-А-3,55ДУ-4 |
АИР63В4 |
1450 |
0,37 |
|
|
3 |
ВРП-А-4ДУ-4 |
АИР71А4 |
1320 |
0,55 |
|
|
4 |
ВРП-А-4,5ДУ-4 |
АИР80А4 |
1450 |
1,1 |
|
|
5 |
ВРП-А-5ДУ-4 |
АИР80В4 |
1395 |
1,5 |
|
|
6 |
ВРП-А-5,6ДУ-4 |
АИР100S4 |
1450 |
3 |
|
|
7 |
ВРП-А-6,3ДУ-6 |
АИР90L6 |
920 |
1,5 |
|
|
8 |
ВРП-А-6,3ДУ-4 |
АИР112М4 |
1410 |
5,5 |
|
|
9 |
ВРП-А-7,1ДУ-6 |
АИР112МА6 |
950 |
3 |
|
|
10 |
ВРП-А-7,1ДУ-4 |
АИР132М4 |
1450 |
11 |
|
|
11 |
ВРП-А-8ДУ-8 |
АИР112МА8 |
710 |
2,2 |
|
|
12 |
ВРП-А-8ДУ-6 |
АИР132S6 |
950 |
5,5 |
|
|
13 |
ВРП-А-8ДУ-4 |
АИР160S4 |
1450 |
15 |
|
|
№ |
Тип вентилятора |
Тип электродвигателя |
Частота, n, мин-1 |
Мощность, Nу, кВт |
|
|
1 |
ВРП-Б-3,15ДУ-4 |
АИР63А4 |
1450 |
0,25 |
|
|
2 |
ВРП-Б-3,55ДУ-4 |
АИР71А4 |
1450 |
0,55 |
|
|
3 |
ВРП-Б-4ДУ-4 |
АИР71В4 |
1450 |
0,75 |
|
|
4 |
ВРП-Б-4,5ДУ-4 |
АИР80В4 |
1450 |
1,5 |
|
|
5 |
ВРП-Б-5ДУ-4 |
АИР90L4 |
1450 |
2,2 |
|
|
6 |
ВРП-Б-5,6ДУ-4 |
АИР100L4 |
1450 |
4 |
|
|
7 |
ВРП-Б-6,3ДУ-6 |
АИР100L6 |
950 |
2,2 |
|
|
8 |
ВРП-Б-6,3ДУ-4 |
АИР132S4 |
1450 |
7,5 |
|
|
9 |
ВРП-Б-7,1ДУ-6 |
АИР112МВ6 |
950 |
4 |
|
|
10 |
ВРП-Б-7,1ДУ-4 |
АИР160S4 |
1450 |
15 |
|
|
11 |
ВРП-Б-8ДУ-6 |
АИР132М6 |
950 |
7,5 |
|
|
12 |
ВРП-Б-8ДУ-4 |
АИР180S4 |
1450 |
22 |
|
|
№ |
Тип вентилятора |
Размеры, мм |
|||||||||
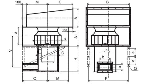
|
D |
А |
В |
А1 |
С |
М |
G |
H |
V |
F |
||
|
1 |
ВРП-А/Б-3,15ДУ-4 |
315 |
220 |
500 |
247 |
350 |
250 |
280 |
350 |
371 |
460 |
|
2 |
ВРП-А/Б-3,55ДУ-4 |
355 |
245 |
560 |
272 |
380 |
280 |
367 |
465 |
508 |
520 |
|
3 |
ВРП-А/Б-4ДУ-4 |
400 |
275 |
630 |
302 |
415 |
315 |
367 |
465 |
523 |
590 |
|
4 |
ВРП-А/Б-4,5ДУ-4 |
450 |
310 |
710 |
337 |
455 |
355 |
367 |
465 |
540 |
670 |
|
5 |
ВРП-А/Б-5ДУ-4 |
500 |
340 |
800 |
374 |
500 |
400 |
412 |
525 |
600 |
760 |
|
6 |
ВРП-А/Б-5,6ДУ-4 |
560 |
380 |
900 |
414 |
550 |
450 |
512 |
635 |
728 |
860 |
|
7 |
ВРП-А/Б-6,3ДУ-6 |
630 |
430 |
1000 |
464 |
600 |
500 |
512 |
635 |
753 |
960 |
|
8 |
ВРП-А/Б-6,3ДУ-4 |
630 |
430 |
1000 |
464 |
600 |
500 |
512 |
635 |
753 |
960 |
|
9 |
ВРП-А/Б-7,1ДУ-6 |
710 |
500 |
1125 |
534 |
662 |
562 |
642 |
760 |
909 |
1085 |
|
10 |
ВРП-А/Б-7,1ДУ-4 |
710 |
500 |
1125 |
534 |
662 |
562 |
642 |
760 |
909 |
1085 |
|
11 |
ВРП-А-8ДУ-8 |
800 |
560 |
1250 |
594 |
725 |
625 |
722 |
840 |
1017 |
1210 |
|
12 |
ВРП-А/Б-8ДУ-6 |
800 |
560 |
1250 |
594 |
725 |
625 |
722 |
840 |
1017 |
1210 |
|
13 |
ВРП-А/Б-8ДУ-4 |
800 |
560 |
1250 |
594 |
725 |
625 |
722 |
840 |
1017 |
1210 |
|
№ |
Тип вентилятора |
Размеры, мм |
Масса, кг |
|||||||
|
a |
b |
e |
Q |
k |
W |
E |
H1 |
|
||
|
1 |
ВРП-А/Б-3,15ДУ-4 |
80 |
160 |
125 |
10х20 |
40 |
245 |
245 |
195/200 |
51/53 |
|
2 |
ВРП-А/Б-3,55ДУ-4 |
100 |
200 |
125 |
10х20 |
43 |
270 |
275 |
200/260 |
90/91 |
|
3 |
ВРП-А/Б-4ДУ-4 |
100 |
200 |
150 |
12х30 |
48 |
300 |
310 |
260/260 |
113/116 |
|
4 |
ВРП-А/Б-4,5ДУ-4 |
100 |
200 |
150 |
12х30 |
55 |
345 |
345 |
250/270 |
130/134 |
|
5 |
ВРП-А/Б-5ДУ-4 |
125 |
250 |
175 |
12х30 |
66 |
375 |
380 |
270/320 |
164/170 |
|
6 |
ВРП-А/Б-5,6ДУ-4 |
125 |
250 |
200 |
12х30 |
76 |
420 |
425 |
320/360 |
240/242 |
|
7 |
ВРП-А/Б-6,3ДУ-6 |
125 |
250 |
200 |
12х30 |
80 |
480 |
480 |
320/350 |
237/252 |
|
8 |
ВРП-А/Б-6,3ДУ-4 |
125 |
250 |
200 |
12х30 |
80 |
480 |
480 |
390/420 |
265/291 |
|
9 |
ВРП-А/Б-7,1ДУ-6 |
140 |
315 |
225 |
14х30 |
90 |
550 |
560 |
390/390 |
342/345 |
|
10 |
ВРП-А/Б-7,1ДУ-4 |
140 |
315 |
225 |
14х30 |
90 |
550 |
560 |
420/571 |
382/426 |
|
11 |
ВРП-А-8ДУ-8 |
140 |
315 |
225 |
14х30 |
90 |
620 |
625 |
380 |
464 |
|
12 |
ВРП-А/Б-8ДУ-6 |
140 |
315 |
225 |
14х30 |
90 |
620 |
625 |
380 |
464 |
|
13 |
ВРП-А/Б-8ДУ-4 |
140 |
315 |
225 |
14х30 |
90 |
620 |
625 |
380 |
464 |
