Прямоугольные ВРПВ-Н
КАНАЛЬНЫЕ ВЕНТИЛЯТОРЫ
Изготавливаются по ТУ-4861-002-52586529-00
1500 - 12000 м3/час
РАБОЧЕЕ КОЛЕСО С ВПЕРЕД ЗАГНУТЫМИ ЛОПАТКАМИ
Размещение двигателя вне воздушного канала предохраняет его от воздействия нежелательных примесей воздушного потока (паров воды, жира и т.п.).
Расположение двигателя вне рабочего колеса обеспечивает повышенную производительность вентилятора.
Возможность регулирования частоты вращения переключением полюсов многоскоростного двигателя (при
заказе) или частотным преобразователем.
Корпус из оцинкованной стали, сварное стальное колесо с покрытием порошковой краской.
Динамическая балансировка рабочих колес.
Работа вентилятора в любом положении.
Вентиляторы обозначаются по приведенному ниже ключу:
ВРПВ -Н –2,5- 4- 3
ВРПВ - тип вентилятора (ВентиляторРадиальныйПрямоугольный с Вперед загнутыми лопатками рабочего колеса);
Н - расположение электродвигателя вНе канала;
2,5 - диаметр рабочего колеса в дм (номер вентилятора);
4 - число полюсов двигателя;
3 - количество фаз электрической сети.
ТЕХНИЧЕСКИЕ ХАРАКТЕРИСТИКИ:
|
№
|
Тип вентилятора |
Размеры сечения канала АхВ, мм |
Тип электро- двигателя |
Частота n, мин-1 |
Мощность Nу, кВт |
Корректированный уровень звуковой мощности LpA, дБ(А) |
|
|
на входе |
на выходе |
||||||
|
1 |
ВРПВ-Н-2-4-3 |
500х250 |
АИР63В4 |
1420 |
0,37 |
71 |
74 |
|
|
ВРПВ-Н-2-4-1 |
500х250 |
АИРЕ63В4 |
1420 |
0,37 |
71 |
74 |
|
2 |
ВРПВ-Н-2,25-4-3 |
500х300 |
АИР71А4 |
1450 |
0,55 |
74 |
77 |
|
|
ВРПВ-Н-2,25-4-1 |
500х300 |
АИРЕ71А4 |
1450 |
0,55 |
74 |
77 |
|
3 |
ВРПВ-Н-2,5-4-3 |
600х300 |
АИР80А4 |
1350 |
1,1 |
77 |
80 |
|
4 |
ВРПВ-Н-2,8-4-3 |
600х350 |
АИР80В4 |
1450 |
1,5 |
80 |
83 |
|
5 |
ВРПВ-Н-3,15-4-3 |
700х400 |
АИР100L4 |
1410 |
4 |
83 |
86 |
|
6 |
ВРПВ-Н-3,55-4-3 |
800х500 |
АИР112М4 |
1450 |
5,5 |
87 |
89 |
|
7 |
ВРПВ-Н-3,55-6-3 |
800х500 |
АИР100L6 |
950 |
2,2 |
67 |
71 |
|
8 |
ВРПВ-Н-4-4-3 |
900х500 |
АИР132М4 |
1450 |
11 |
89 |
91 |
|
9 |
ВРПВ-Н-4-6-3 |
900х500 |
АИР112МВ6 |
950 |
4 |
82 |
84 |

|
№
|
Тип вентилятора
|
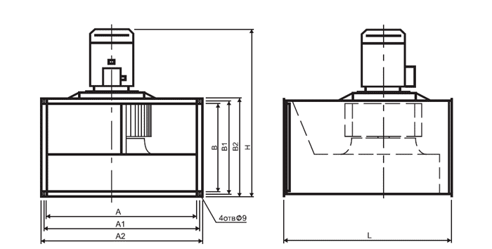
Размеры, мм |
Масса,кг
|
|||||||
|
А |
В |
А1 |
В1 |
А2 |
В2 |
Н |
L |
|||
|
1 |
ВРПВ-Н-2-4-3/1 |
500 |
250 |
520 |
270 |
540 |
290 |
495 |
550 |
18,4 |
|
2 |
ВРПВ-Н-2,25-4-3/1 |
500 |
300 |
520 |
320 |
540 |
340 |
570 |
600 |
20,7 |
|
3 |
ВРПВ-Н-2,5-4-3 |
600 |
300 |
620 |
320 |
640 |
340 |
590 |
680 |
37 |
|
4 |
ВРПВ-Н-2,8-4-3 |
600 |
350 |
620 |
370 |
640 |
390 |
650 |
720 |
56,8 |
|
5 |
ВРПВ-Н-3,15-4-3 |
700 |
400 |
720 |
420 |
740 |
440 |
780 |
780 |
64 |
|
6 |
ВРПВ-Н-3,55-4-3 |
800 |
500 |
830 |
530 |
860 |
560 |
900 |
900 |
72 |
|
7 |
ВРПВ-Н-3,55-6-3 |
800 |
500 |
830 |
530 |
860 |
560 |
900 |
900 |
90,5 |
|
8 |
ВРПВ-Н-4-4-3 |
900 |
500 |
930 |
530 |
960 |
560 |
980 |
1035 |
131 |
|
9 |
ВРПВ-Н-4-6-3 |
900 |
500 |
930 |
530 |
960 |
560 |
920 |
1035 |
102 |
