Прямоугольные ВРПН-Н и ВРПН-НК
КАНАЛЬНЫЕ ВЕНТИЛЯТОРЫ
Изготавливаются по ТУ-4861-002-52586529-00 - ВРПН-Н
Изготавливаются по ТУ-4861-011-52586529-06 - ВРПН-НК
500 - 12000 м3/час
РАБОЧЕЕ КОЛЕСО С НАЗАД ЗАГНУТЫМИ ЛОПАТКАМИ
НИЗКИЙ УРОВЕНЬ ЭНЕРГОПОТРЕБЛЕНИЯ.
Размещение двигателя вне воздушного канала предохраняет его от воздействия нежелательных примесей воздушного потока (паров воды, жира и т.п.).
Возможность регулирования частоты вращения переключением полюсов многоскоростного двигателя (при заказе) или частотным преобразователем.
Динамическая балансировка рабочих колес.
Работа вентилятора в любом положении.
Корпус из оцинкованной стали, сварное стальное колесо с покрытием порошковой краской.
У вентиляторов ВРПН-НК рабочее колесо из нержавеющей стали не имеет покрытия, что позволяет, при необходимости, мыть колесо по методике, указанной в паспорте к вентилятору.
Вентиляторы ВРПН-НК предназначены для эксплуатации в вытяжных системах кухонь и подобных производств для перемещения воздуха, имеющего температуру до +200 С.
Для обеспечения нормальной работы вентилятора необходимо устанавливать перед ним масло - жирозадерживающий фильтр, который должен проходить регулярную очистку или замену.
Вентиляторы обозначаются по приведенному ниже ключу:
ВРПН –Н(К) –2,5- 2- 3
ВРПН - тип вентилятора (ВентиляторРадиальныйПрямоугольный с Назад загнутыми лопатками рабочего колеса);
Н(К) - расположение электродвигателя вНе канала;
- модификация: Кухонный
2,5 - диаметр рабочего колеса в дм (номер вентилятора);
2 - число полюсов двигателя;
3 - количество фаз электрической сети.
ТЕХНИЧЕСКИЕ ХАРАКТЕРИСТИКИ:
|
№
|
Тип вентилятора |
Размеры сечения канала АхВ, мм |
Тип электро- двигателя |
Частота n, мин-1 |
Мощность Nу, кВт |
Корректированный уровень звуковой мощности LpA, дБ(А) |
|
|
на входе |
на выходе |
||||||
|
1 |
ВРПН-Н(К)-1,6-2-3 |
300х150 |
АИС56А2 |
2900 |
0,09 |
62 |
66 |
|
|
ВРПН-Н(К)-1,6-2-1 |
300х150 |
АИСЕ56А2 |
2900 |
0,09 |
62 |
66 |
|
2 |
ВРПН-Н(К)-1,8-2-3 |
400х200 |
АИС56В2 |
2900 |
0,12 |
67 |
74 |
|
|
ВРПН-Н(К)-1,8-2-1 |
400х200 |
АИСЕ56В2 |
2900 |
0,12 |
67 |
74 |
|
3 |
ВРПН-Н(К)-2-2-3 |
400х200 |
АИР56А2 |
2900 |
0,18 |
69 |
73 |
|
|
ВРПН-Н(К)-2-2-1 |
400х200 |
АИРЕ56А2 |
2900 |
0,18 |
69 |
73 |
|
4 |
ВРПН-Н(К)-2,25-2-3 |
500х250 |
АИР63А2 |
2900 |
0,37 |
72 |
79 |
|
|
ВРПН-Н(К)-2,25-2-1 |
500х250 |
АИРЕ63А2 |
2900 |
0,37 |
72 |
79 |
|
5 |
ВРПН-Н(К)-2,5-2-3 |
500х250 |
АИР63В2 |
2900 |
0,55 |
76 |
80 |
|
|
ВРПН-Н(К)-2,5-2-1 |
500х250 |
АИРЕ63В2 |
2900 |
0,55 |
76 |
80 |
|
6 |
ВРПН-Н(К)-2,5-4-3 |
500х250 |
АИС56В4 |
1450 |
0,09 |
57 |
61 |
|
|
ВРПН-Н(К)-2,5-4-1 |
500х250 |
АИСЕ56В4 |
1450 |
0,09 |
57 |
61 |
|
7 |
ВРПН-Н(К)-2,8-2-3 |
500х300 |
АИР71В2 |
2900 |
1,1 |
62 |
69 |
|
8 |
ВРПН-Н(К)-2,8-4-3 |
500х300 |
АИР56А4 |
1450 |
0,12 |
60 |
64 |
|
|
ВРПН-Н(К)-2,8-4-1 |
500х300 |
АИРЕ56А4 |
1450 |
0,12 |
60 |
64 |
|
9 |
ВРПН-Н(К)-3,15-2-3 |
500х300 |
АИР80В2 |
2900 |
2,2 |
66 |
73 |
|
10 |
ВРПН-Н(К)-3,15-4-3 |
500х300 |
АИР63А4 |
1450 |
0,25 |
65 |
69 |
|
|
ВРПН-Н(К)-3,15-4-1 |
500х300 |
АИРЕ63А4 |
1450 |
0,25 |
65 |
69 |
|
11 |
ВРПН-Н(К)-3,55-2-3 |
600х350 |
АИР90L2 |
2900 |
3 |
81 |
88 |
|
12 |
ВРПН-Н(К)-3,55-4-3 |
600х350 |
АИР63В4 |
1450 |
0,37 |
67 |
71 |
|
|
ВРПН-Н(К)-3,55-4-1 |
600х350 |
АИРЕ63В4 |
1450 |
0,37 |
67 |
71 |
|
13 |
ВРПН-Н(К)-4-4-3 |
700х400 |
АИР71В4 |
1450 |
0,75 |
72 |
76 |
|
14 |
ВРПН-Н(К)-4,5-4-3 |
800х500 |
АИР80В4 |
1450 |
1,5 |
75 |
79 |
|
15 |
ВРПН-Н(К)-5-4-3 |
800х500 |
АИР90L4 |
1450 |
2,2 |
79 |
83 |
|
16 |
ВРПН-Н(К)-5,6-4-3 |
1000х500 |
АИР100L4 |
1450 |
4 |
80 |
84 |

|
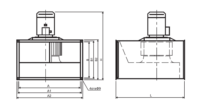
№ |
Тип вентилятора |
Размеры, мм |
Масса,кг |
|||||||
|
А |
В |
А1 |
В1 |
А2 |
В2 |
Н |
L |
|||
|
1 |
ВРПН-Н(К)-1,6-2-3/1 |
300 |
150 |
320 |
170 |
340 |
190 |
340 |
340 |
10 |
|
2 |
ВРПН-Н(К)-1,8-2-3/1 |
400 |
200 |
420 |
220 |
440 |
240 |
420 |
365 |
11,5 (15,5) |
|
3 |
ВРПН-Н(К)-2-2-3/1 |
400 |
200 |
420 |
220 |
440 |
240 |
420 |
365 |
12,5 (16,1) |
|
4 |
ВРПН-Н(К)-2,25-2-3/1 |
500 |
250 |
520 |
270 |
540 |
290 |
475 |
455 |
27,5 (26) |
|
5 |
ВРПН-Н(К)-2,5-2-3/1 |
500 |
250 |
520 |
270 |
540 |
290 |
475 |
455 |
24,5 (26,8) |
|
6 |
ВРПН-Н(К)-2,5-4-3/1 |
500 |
250 |
520 |
270 |
540 |
290 |
440 |
455 |
18 (25,2) |
|
7 |
ВРПН-Н(К)-2,8-2-3 |
500 |
300 |
520 |
320 |
540 |
340 |
560 |
475 |
29 |
|
8 |
ВРПН-Н(К)-2,8-4-3/1 |
500 |
300 |
520 |
320 |
540 |
340 |
520 |
475 |
19,5 (21,1) |
|
9 |
ВРПН-Н(К)-3,15-2-3 |
500 |
300 |
520 |
320 |
540 |
340 |
585 |
530 |
33 (34) |
|
10 |
ВРПН-Н(К)-3,15-4-3/1 |
500 |
300 |
520 |
320 |
540 |
340 |
520 |
530 |
21 (30,9) |
|
11 |
ВРПН-Н(К)-3,55-2-3 |
600 |
350 |
620 |
370 |
640 |
390 |
665 |
585 |
36,5 (42,1) |
|
12 |
ВРПН-Н(К)-3,55-4-3/1 |
600 |
350 |
620 |
370 |
640 |
390 |
575 |
585 |
24,5 (39,1) |
|
13 |
ВРПН-Н(К)-4-4-3 |
700 |
400 |
720 |
420 |
740 |
440 |
660 |
665 |
43 |
|
14 |
ВРПН-Н(К)-4,5-4-3 |
800 |
500 |
830 |
530 |
860 |
560 |
790 |
835 |
50 |
|
15 |
ВРПН-Н(К)-5-4-3 |
800 |
500 |
830 |
530 |
860 |
560 |
820 |
835 |
66 |
|
16 |
ВРПН-Н(К)-5,6-4-3 |
1000 |
500 |
1030 |
530 |
1060 |
560 |
975 |
950 |
115,5 (126) |
