Прямоугольные ВИПм
КАНАЛЬНЫЕ ВЕНТИЛЯТОРЫ
Изготавливаются по ТУ-4861-003-52586529-02
800 - 9500 м3/час
РАБОЧЕЕ КОЛЕСО С НАЗАД ЗАГНУТЫМИ ЛОПАТКАМИ
НИЗКИЙ УРОВЕНЬ ШУМА И ЭНЕРГОПОТРЕБЛЕНИЯ
РАСПРЕДЕЛЕНИЕ ВЫХОДЯЩЕГО ПОТОКА ПО ВСЕМУ СЕЧЕНИЮ КОРОБА
ЛЕГКООЧИЩАЕМАЯ ПОВЕРХНОСТЬ РАБОЧЕГО КОЛЕСА
Повышенное давление, развиваемое вентиляторами малых и средних сечений каналов.
Работа без ограничений по мощности двигателя во всем диапазоне развиваемой производительности у вентиляторов средних и больших сечений каналов.
Корпус из оцинкованной стали, сварное стальное колесо с покрытием порошковой краской.
Существенное снижение уровня шума через стенки и на входе в вентилятор.
Динамическая балансировка рабочих колес.
Работа вентилятора в любом положении.
Вентиляторы обозначаются по приведенному ниже ключу:
ВИП м–50х25 Б1
ВИП - тип вентилятора (Вентиляторв Изолированном корпусеПрямоугольный);
м - модификация;
50х25 - размер сечения канала в см;
Б - индекс аэродинамической мощности;
1 - количество фаз электрической сети.
ТЕХНИЧЕСКИЕ ХАРАКТЕРИСТИКИ:
|
№ |
Тип вентилятора |
Тип электродвигателя |
Частота n, мин-1 |
Мощность Nу, кВт |
Корректированный уровень звуковой мощности LpA, дБ(А) |
|||
|
3-фазные |
1-фазные |
на входе |
на выходе |
через стенки |
||||
|
1 |
ВИПм 30х15А |
АИС56А2 |
АИСЕ56А2 |
2910 |
0,09 |
61 |
62 |
45 |
|
2 |
ВИПм 30х15Б |
АИР56А2 |
АИРЕ56А2 |
2825 |
0,18 |
65 |
66 |
49 |
|
3 |
ВИПм 40х20А |
АИР56А2 |
АИРЕ56А2 |
2825 |
0,18 |
65 |
66 |
49 |
|
4 |
ВИПм 40х20Б |
АИР56В2 |
АИРЕ56В2 |
2875 |
0,25 |
68 |
69 |
52 |
|
5 |
ВИПм 40х20В |
АИР63А2 |
АИРЕ63А2 |
2895 |
0,37 |
69 |
70 |
53 |
|
6 |
ВИПм 50х25А |
АИС56В4 |
АИСЕ56В4 |
1450 |
0,09 |
60 |
61 |
44 |
|
7 |
ВИПм 50х25Б |
АИР56В2 |
АИРЕ56В2 |
2875 |
0,25 |
68 |
69 |
52 |
|
8 |
ВИПм 50х25В |
АИР63А2 |
АИРЕ63А2 |
2895 |
0,37 |
69 |
70 |
53 |
|
9 |
ВИПм 50х25Г |
АИР63В2 |
АИРЕ63В2 |
2880 |
0,55 |
73 |
74 |
57 |
|
10 |
ВИПм 50х30А |
АИР56А4 |
АИРЕ56А4 |
1430 |
0,12 |
61 |
62 |
45 |
|
11 |
ВИПм 50х30Б |
АИР63В2 |
АИРЕ63В2 |
2895 |
0,55 |
71 |
72 |
55 |
|
12 |
ВИПм 50х30В |
АИР71А2 |
АИРЕ71А2 |
2880 |
0,75 |
75 |
76 |
59 |
|
13 |
ВИПм 50х30Г |
АИР71В2 |
--- |
2915 |
1,1 |
76 |
77 |
60 |
|
14 |
ВИПм 60х30А |
АИР56В4 |
АИРЕ56В4 |
1430 |
0,18 |
63 |
64 |
47 |
|
15 |
ВИПм 60х30Б |
АИР63В2 |
АИРЕ63В2 |
2895 |
0,55 |
73 |
74 |
57 |
|
16 |
ВИПм 60х30В |
АИР71А2 |
АИРЕ71А2 |
2895 |
0,75 |
75 |
76 |
59 |
|
17 |
ВИПм 60х30Г |
АИР80А2 |
--- |
2900 |
1,5 |
78 |
79 |
62 |
|
18 |
ВИПм 60х35А |
АИР63В4 |
АИРЕ63В4 |
1450 |
0,37 |
67 |
68 |
51 |
|
19 |
ВИПм 60х35Б |
АИР71В2 |
--- |
2915 |
1,1 |
76 |
77 |
60 |
|
20 |
ВИПм 60х35В |
АИР80А2 |
--- |
2880 |
1,5 |
78 |
79 |
62 |
|
21 |
ВИПм 60х35Г |
АИР80А2 |
--- |
2890 |
1,5 |
79 |
80 |
63 |
|
22 |
ВИПм 70х40А |
АИР71А4 |
АИРЕ71А4 |
1450 |
0,55 |
70 |
71 |
54 |
|
23 |
ВИПм 70х40Б |
АИР80А2 |
--- |
2880 |
1,5 |
78 |
79 |
62 |
|
24 |
ВИПм 70х40В |
АИР80А2 |
--- |
2890 |
1,5 |
79 |
80 |
63 |
|
25 |
ВИПм 70х40Г |
АИР80В2 |
--- |
2915 |
2,2 |
82 |
83 |
66 |
|
26 |
ВИПм 80х50А |
АИР80А4 |
--- |
1460 |
1,1 |
74 |
75 |
58 |
|
27 |
ВИПм 80х50Б |
АИР80В4 |
--- |
1450 |
1,5 |
75 |
76 |
59 |
|
28 |
ВИПм 80х50В |
АИР80В2 |
--- |
2915 |
2,2 |
82 |
83 |
66 |
|
29 |
ВИПм 80х50Г |
АИР90L2 |
--- |
2900 |
3 |
83 |
84 |
67 |
|
30 |
ВИПм 100х50А |
АИР90L4 |
--- |
1440 |
2,2 |
77 |
78 |
61 |
|
31 |
ВИПм 100х50Б |
АИР90L2 |
--- |
2900 |
3 |
83 |
84 |
67 |
|
32 |
ВИПм 100х50В |
АИР100S2 |
--- |
2900 |
4 |
85 |
86 |
69 |

|
№
|
Тип вентилятора
|
Рис |
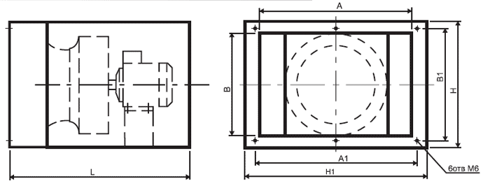
Размеры, мм |
Масса, кг
|
||||||
|
А |
В |
А1 |
В1 |
L |
H |
H1 |
||||
|
1 |
ВИПм 30х15А |
1 |
300 |
150 |
320 |
170 |
520 |
210 |
400 |
17.5 |
|
2 |
ВИПм 30х15Б |
1 |
300 |
150 |
320 |
170 |
520 |
210 |
400 |
19.3 |
|
3 |
ВИПм 40х20А |
1 |
400 |
200 |
420 |
220 |
560 |
260 |
500 |
22.4 |
|
4 |
ВИПм 40х20Б |
1 |
400 |
200 |
420 |
220 |
560 |
260 |
500 |
24.4 |
|
5 |
ВИПм 40х20В |
1 |
400 |
200 |
420 |
220 |
560 |
260 |
500 |
26.8 |
|
6 |
ВИПм 50х25А |
1 |
500 |
250 |
520 |
270 |
605 |
290 |
600 |
32,8 |
|
7 |
ВИПм 50х25Б |
1 |
500 |
250 |
520 |
270 |
605 |
290 |
600 |
30,8 |
|
8 |
ВИПм 50х25В |
1 |
500 |
250 |
520 |
270 |
605 |
290 |
600 |
31,3 |
|
9 |
ВИПм 50х25Г |
1 |
500 |
250 |
520 |
270 |
605 |
290 |
600 |
31,3 |
|
10 |
ВИПм 50х30А |
1 |
500 |
300 |
520 |
320 |
690 |
330 |
600 |
38,3 |
|
11 |
ВИПм 50х30Б |
1 |
500 |
300 |
520 |
320 |
690 |
330 |
600 |
35,3 |
|
12 |
ВИПм 50х30В |
1 |
500 |
300 |
520 |
320 |
690 |
330 |
600 |
37,1 |
|
13 |
ВИПм 50х30Г |
1 |
500 |
300 |
520 |
320 |
690 |
330 |
600 |
45,2 |
|
14 |
ВИПм 60х30А |
1 |
600 |
300 |
620 |
320 |
690 |
330 |
700 |
52,3 |
|
15 |
ВИПм 60х30Б |
1 |
600 |
300 |
620 |
320 |
690 |
330 |
700 |
40 |
|
16 |
ВИПм 60х30В |
1 |
600 |
300 |
620 |
320 |
690 |
330 |
700 |
49,4 |
|
17 |
ВИПм 60х30Г |
1 |
600 |
300 |
620 |
320 |
690 |
330 |
700 |
50 |
|
18 |
ВИПм 60х35А |
1 |
600 |
350 |
620 |
370 |
710 |
380 |
700 |
55.7 |
|
19 |
ВИПм 60х35Б |
1 |
600 |
350 |
620 |
370 |
710 |
380 |
700 |
53,8 |
|
20 |
ВИПм 60х35В |
1 |
600 |
350 |
620 |
370 |
710 |
380 |
700 |
54 |
|
21 |
ВИПм 60х35Г |
1 |
600 |
350 |
620 |
370 |
710 |
380 |
700 |
58,2 |
|
22 |
ВИПм 70х40А |
1 |
700 |
400 |
720 |
420 |
810 |
430 |
800 |
70,6 |
|
23 |
ВИПм 70х40Б |
1 |
700 |
400 |
720 |
420 |
810 |
400 |
800 |
67,7 |
|
24 |
ВИПм 70х40В |
1 |
700 |
400 |
720 |
420 |
810 |
400 |
800 |
73,2 |
|
25 |
ВИПм 70х40Г |
1 |
700 |
400 |
720 |
420 |
810 |
400 |
800 |
67,4 |
|
26 |
ВИПм 80х50А |
1 |
800 |
500 |
830 |
530 |
880 |
500 |
900 |
82,8 |
|
27 |
ВИПм 80х50Б |
1 |
800 |
500 |
830 |
530 |
880 |
500 |
900 |
96,6 |
|
28 |
ВИПм 80х50В |
1 |
800 |
500 |
830 |
|||||
